Photo provided by Google Street View and may be inaccurate:
Apartment for rent, Wien Neubau, Vienna,
, Wien Neubau- Apartment for rent
- 75 m2
- 2,500 EUR per month
![Apartment for rent, Wien Neubau, Vienna, <span class="blurred street" onclick="ProcessAdRequest(14322431)"><span class="hint">See streetname</span>[xxxxxxxxxxxxx]</span>](/LPUploadImages/Cache/9765ccac-878f-4a6c-a815-e1178738bd69_134.webp?t=638959231455131660)
- Apartment for rent
- 75 m2
- 2,500 EUR per month
GET MORE INFO
Your are linked to another portal where payment or signing up may be needed
Apartment for rent, Wien Neubau, Vienna,
Fakta
- 14322431
- Apartment
- 75 m2
- 2
- 8 months
- 12.2.2026
- 2,500 EUR
- 2,500 EUR
- Yes
GET MORE INFO
Your are linked to another portal where payment or signing up may be needed
Apartment for rent in Wien Neubau, Vienna
💢💢💢
Trendy District I Close to City I 5 Min to Metro
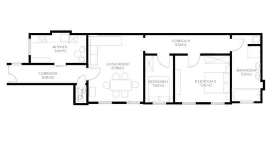
Settle down in Vienna’s 7th district – a vibrant neighborhood known for its art galleries, independent boutiques, and cozy cafés. This fully furnished 3-room apartment is just a 5-minute walk from the metro, giving you quick access to the entire city while enjoying the relaxed, creative atmosphere of Neubau. Perfect for expats, business travelers, and anyone relocating to Vienna, it combines modern comfort with one of the city’s most inspiring locations.
Inside, you’ll find:
- Two comfortable bedrooms with high-quality linens and plenty of storage
- A bright, inviting living area for relaxing or working from home
- A fully equipped kitchen with everything you need for home-cooked meals
- A modern bathroom with fresh towels and toiletries
- High-speed WiFi and Smart TV for both work and entertainment
Surrounded by small shops, lively cafés, and cultural hotspots, you’re just a stone’s throw from the historic city center. Whether you’re here for a few months or a longer project, this apartment makes it easy to feel at home right away in Vienna’s most creative district.
💢💢💢
Trendy District I Close to City I 5 Min to Metro
Settle down in Vienna’s 7th district – a vibrant neighborhood known for its art galleries, independent boutiques, and cozy cafés. This fully furnished 3-room apartment is just a 5-minute walk from the metro, giving you quick access to the entire city while enjoying the relaxed, creative atmosphere of Neubau. Perfect for expats, business travelers, and anyone relocating to Vienna, it combines modern comfort with one of the city’s most inspiring locations.
Inside, you’ll find:
- Two comfortable bedrooms with high-quality linens and plenty of storage
- A bright, inviting living area for relaxing or working from home
- A fully equipped kitchen with everything you need for home-cooked meals
- A modern bathroom with fresh towels and toiletries
- High-speed WiFi and Smart TV for both work and entertainment
Surrounded by small shops, lively cafés, and cultural hotspots, you’re just a stone’s throw from the historic city center. Whether you’re here for a few months or a longer project, this apartment makes it easy to feel at home right away in Vienna’s most creative district.
💢💢💢
Information and data
This housing rental, which is furnished, is located on Burggasse in Wien Neubau. Wien Neubau has the zip code 1070 and is located in Vienna. The size of the rental is in total 75 m2 with 2 separate rooms. The housing is being rented out as an ordinary rental. The rental is available from 12.2.2026. The rental period is 8 months. The rent is 2,500 EUR per month. You must pay a deposit of 2,500 Euro.
This is a search result. Continue to the external website by clicking the button to receive more info about the housing.