Photo provided by Google Street View and may be inaccurate:
Apartment for rent, Vienna Leopoldstadt, Vienna,
, Vienna Leopoldstadt- Apartment for rent
- Ca. 50 m2
- Ca. 1,650 EUR per month
, Vienna Leopoldstadt
- Apartment for rent
- Ca. 50 m2
- Ca. 1,650 EUR per month
GET MORE INFO
Your are linked to another portal where payment or signing up may be needed
Apartment for rent, Vienna Leopoldstadt, Vienna,
Facts
- 7723518
- Apartment
- Ca. 50 m2
- 2
- 1.2.2027
- Ca. 1,650 EUR
- Ca. 1,500 EUR
- Yes
GET MORE INFO
Your are linked to another portal where payment or signing up may be needed
Apartment for rent in Vienna Leopoldstadt, Vienna
#Sebastian-Kneipp
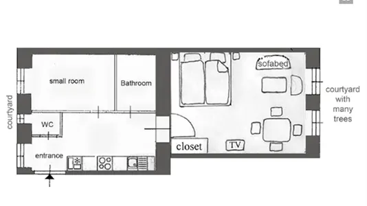
🏠 Beautiful 2-room apartment near the city center of Vienna, on the 2nd floor with elevator, sunny and quiet, fully furnished. It features a complete kitchen with fridge, stove, and dishwasher, a bath with bathtub and washing machine, TV, and high-speed internet. Located near Congress Center – Reed Messe Wien.
Please ask for daily prices as well!
📏 50 sqm | 🛏️ 2 rooms | 🧍 5 persons max | 📺 TV, 🌐 high-speed internet | 🛁 Bath with bathtub and 🧺 washing machine | 🍳 Complete kitchen with stove, fridge, dishwasher, coffee maker, water boiler, toaster, microwave | 🛏️ Bedroom with comfortable big double sofabed | 🛋️ Living room with big double bed (180 cm broad), 2 sofabeds (1 double sofabed 140 cm broad, 1 single sofabed 80 cm broad) | 🛗 Elevator | 🌡️ Central heating | 🚇 Close to subway (2 minutes walk)
Enjoy your short- or long-term stay in a newly renovated condominium in Vienna with a fully equipped kitchen and bathtub. Ideal for tourists, business people, large families, and anyone who prefers a relaxed private setting over crowded hotels and boarding houses.
Our high-standard 2-room condominium, next to Vienna’s famous funfair, the “Prater” with the “Giant Wheel”, is situated near the huge “Green Prater”, a biking, jogging, and strolling area with meadows and woods. The location of our condominium in Vienna – near the trade fair area “Reed Messe Wien” with the Congress Center and the underground station and close to the city – is perfect for business trips. Double bed, extra beds, comfortable furniture, cable TV, and high-speed Internet will convey the pleasant feeling of staying in your private condominium in Vienna. The kitchen includes a stove, refrigerator, coffee machine, and other necessary implements for home cooking or stashing your supplies. Washing machine, iron, fresh bed linen, and towels are standard in our condominiums. Our condominium in Vienna also provides a private garage space on request! Contact us for availability.
The apartment number 15 in the Sebastian-Kneipp-Gasse 10 is located within a very silent neighborhood, far away from the traffic noise and only a few minutes away from the new fairgrounds and the convention center near the Wiener Prater and the famous Ferris wheel. From here, you can reach all the interesting sights and locations in Vienna within just 20 minutes. For example, the beautiful Augarten (U2, within two minutes) in the heart of Vienna. Cultural as well as entertainment facilities, like the Wiener Sängerknaben at the Augartenpalais, the Movie Archive Austria, or the porcelain manufactory and schools are located here.
🛒 supermarket, various restaurants, and shops are in the immediate vicinity of the holiday flat in Vienna in the Sebastian-Kneipp-Gasse.
🚆Subway station (U2) right next to the apartment and a few bus lines, which lead into the center of the city via the Praterstern and Schwedenplatz, but they can also take you to the Danube. In Vienna, the subways travel around the clock, so you will still be able to reach home even after a long night.
🏠 Beautiful 2-room apartment near the city center of Vienna, on the 2nd floor with elevator, sunny and quiet, fully furnished. It features a complete kitchen with fridge, stove, and dishwasher, a bath with bathtub and washing machine, TV, and high-speed internet. Located near Congress Center – Reed Messe Wien.
Please ask for daily prices as well!
📏 50 sqm | 🛏️ 2 rooms | 🧍 5 persons max | 📺 TV, 🌐 high-speed internet | 🛁 Bath with bathtub and 🧺 washing machine | 🍳 Complete kitchen with stove, fridge, dishwasher, coffee maker, water boiler, toaster, microwave | 🛏️ Bedroom with comfortable big double sofabed | 🛋️ Living room with big double bed (180 cm broad), 2 sofabeds (1 double sofabed 140 cm broad, 1 single sofabed 80 cm broad) | 🛗 Elevator | 🌡️ Central heating | 🚇 Close to subway (2 minutes walk)
Enjoy your short- or long-term stay in a newly renovated condominium in Vienna with a fully equipped kitchen and bathtub. Ideal for tourists, business people, large families, and anyone who prefers a relaxed private setting over crowded hotels and boarding houses.
Our high-standard 2-room condominium, next to Vienna’s famous funfair, the “Prater” with the “Giant Wheel”, is situated near the huge “Green Prater”, a biking, jogging, and strolling area with meadows and woods. The location of our condominium in Vienna – near the trade fair area “Reed Messe Wien” with the Congress Center and the underground station and close to the city – is perfect for business trips. Double bed, extra beds, comfortable furniture, cable TV, and high-speed Internet will convey the pleasant feeling of staying in your private condominium in Vienna. The kitchen includes a stove, refrigerator, coffee machine, and other necessary implements for home cooking or stashing your supplies. Washing machine, iron, fresh bed linen, and towels are standard in our condominiums. Our condominium in Vienna also provides a private garage space on request! Contact us for availability.
The apartment number 15 in the Sebastian-Kneipp-Gasse 10 is located within a very silent neighborhood, far away from the traffic noise and only a few minutes away from the new fairgrounds and the convention center near the Wiener Prater and the famous Ferris wheel. From here, you can reach all the interesting sights and locations in Vienna within just 20 minutes. For example, the beautiful Augarten (U2, within two minutes) in the heart of Vienna. Cultural as well as entertainment facilities, like the Wiener Sängerknaben at the Augartenpalais, the Movie Archive Austria, or the porcelain manufactory and schools are located here.
🛒 supermarket, various restaurants, and shops are in the immediate vicinity of the holiday flat in Vienna in the Sebastian-Kneipp-Gasse.
🚆Subway station (U2) right next to the apartment and a few bus lines, which lead into the center of the city via the Praterstern and Schwedenplatz, but they can also take you to the Danube. In Vienna, the subways travel around the clock, so you will still be able to reach home even after a long night.
Information and data
This housing rental, which is furnished, is located on Sebastian-Kneipp-Gasse in Vienna Leopoldstadt. Vienna Leopoldstadt has the zip code 1020 and is located in Vienna. The size of the rental is in total 50 m2 with 2 separate rooms. The housing is being rented out as an ordinary rental. The rental is available from 1.2.2027. The rent is Ca. 1,650 EUR per month. You must pay a deposit of Ca. 1,500 Euro.
Market insight: This home was identified through our real-time monitoring of the housing market. We collect housing rentals from across the country in your dashboard – including opportunities that are not always visible on traditional portals. Act immediately on fresh data before other home seekers.