Photo provided by Google Street View and may be inaccurate:
Apartment for rent, Vienna Hernals, Vienna,
, Vienna Hernals- Apartment for rent
- Ca. 30 m2
- Ca. 1,000 EUR per month
, Vienna Hernals
- Apartment for rent
- Ca. 30 m2
- Ca. 1,000 EUR per month
GET MORE INFO
Your are linked to another portal where payment or signing up may be needed
Apartment for rent, Vienna Hernals, Vienna,
Facts
- 7723768
- Apartment
- Ca. 30 m2
- Ca. 1,000 EUR
- Ca. 2,950 EUR
- Yes
GET MORE INFO
Your are linked to another portal where payment or signing up may be needed
Apartment for rent in Vienna Hernals, Vienna
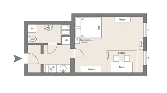
Die gemütliche 1-Zimmer-Wohnung liegt im Erdgeschoss und wird für eine Dauer von 3-6 Monaten vermietet.
Schön möblierte, voll ausgestattete gemütliche Wohnung.
31m2, Einbauküche mit Kühlschrank, E-Herd und Dunstabzugshaube, Zimmer mit Bett, Kleiderschrank, Tisch und Sessel, Regal, Bad mit Dusche und WC, Waschmaschine, WLAN.
Vorzimmer mit Fliesenboden, Zimmer mit Parkettboden, Gasetagenheizung.
Schön eingerichtet, perfekt zum Wohlfühlen.
Die Straßenbahnlinie 44 ist nur 260 entfernt und die U-Bahnlinie U6 ist ebenfalls gut zu Fuß erreichbar.
Die ums Eck gelegene Ottakringer Straße bietet zahlreiche Einkaufsmöglichkeiten.
In der Monatsmiete ist bereits alles enthalten, Sie müssen sich um nichts mehr kümmern und können Ihre Zeit hier genießen.
Es ist nicht möglich hier den Hauptwohnsitz anzumelden. Die Kurzzeitwohnungen können von Berufspendlern (ohne Hauptwohnsitz in Wien) oder von Personen aus dem Ausland angemietet werden.
Schön möblierte, voll ausgestattete gemütliche Wohnung.
31m2, Einbauküche mit Kühlschrank, E-Herd und Dunstabzugshaube, Zimmer mit Bett, Kleiderschrank, Tisch und Sessel, Regal, Bad mit Dusche und WC, Waschmaschine, WLAN.
Vorzimmer mit Fliesenboden, Zimmer mit Parkettboden, Gasetagenheizung.
Schön eingerichtet, perfekt zum Wohlfühlen.
Die Straßenbahnlinie 44 ist nur 260 entfernt und die U-Bahnlinie U6 ist ebenfalls gut zu Fuß erreichbar.
Die ums Eck gelegene Ottakringer Straße bietet zahlreiche Einkaufsmöglichkeiten.
In der Monatsmiete ist bereits alles enthalten, Sie müssen sich um nichts mehr kümmern und können Ihre Zeit hier genießen.
Es ist nicht möglich hier den Hauptwohnsitz anzumelden. Die Kurzzeitwohnungen können von Berufspendlern (ohne Hauptwohnsitz in Wien) oder von Personen aus dem Ausland angemietet werden.
Information and data
This housing rental, which is furnished, is located on Steinergasse in Vienna Hernals. Vienna Hernals has the zip code 1170 and is located in Vienna. The size of the rental is in total 31 m2. The housing is being rented out as an ordinary rental. The rent is Ca. 1,000 EUR per month. You must pay a deposit of Ca. 2,950 Euro.
Market insight: This home was identified through our real-time monitoring of the housing market. We collect housing rentals from across the country in your dashboard – including opportunities that are not always visible on traditional portals. Act immediately on fresh data before other home seekers.