Photo provided by Google Street View and may be inaccurate:
Apartment for rent, Vienna Favoriten, Vienna,
, Vienna Favoriten- Apartment for rent
- Ca. 25 m2
- Ca. 800 EUR per month
, Vienna Favoriten
- Apartment for rent
- Ca. 25 m2
- Ca. 800 EUR per month
GET MORE INFO
Your are linked to another portal where payment or signing up may be needed
Apartment for rent, Vienna Favoriten, Vienna,
Facts
- 10390333
- Apartment
- Ca. 25 m2
- 28.9.2026
- Ca. 800 EUR
- Ca. 2,450 EUR
- Yes
GET MORE INFO
Your are linked to another portal where payment or signing up may be needed
Apartment for rent in Vienna Favoriten, Vienna
Die wunderschöne 1-Zimmer-Wohnung wird für eine Dauer von 3 - 6 Monaten vermietet.
Schön möblierte, voll ausgestattete moderne Wohnung.
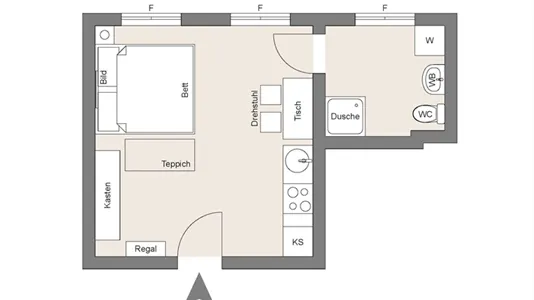
24m2, Einbauküche mit Kühlschrank, E-Herd und Dunstabzugshaube, Zimmer mit Bett, Kleiderschrank, Tisch und Sessel, Regal, Bad mit Dusche und WC, Waschmaschine, WLAN.
Vorzimmer mit Fliesenboden, Zimmer mit Parkettboden, Fernwärmezentralheizung.
Gemütlich eingerichtet, perfekt zum Wohlfühlen.
Die Straßenbahnlinien 6 und 11 sind nur 120m entfernt und die U-Bahnlinie U1 erreicht man in 5 Minuten zu Fuß.
Auch die Favoritenstraße mit zahlreichen Einkaufsmöglichkeiten ist in 5 Minuten zu Fuß erreichbar.
Es ist nicht möglich hier den Hauptwohnsitz anzumelden. Die Kurzzeitwohnungen können von Berufspendlern (ohne Hauptwohnsitz in Wien) oder von Personen aus dem Ausland angemietet werden. Bei Einzug ist eine einmalige Endreinigungsgebühr von 150€ zu entrichten.
Schön möblierte, voll ausgestattete moderne Wohnung.
24m2, Einbauküche mit Kühlschrank, E-Herd und Dunstabzugshaube, Zimmer mit Bett, Kleiderschrank, Tisch und Sessel, Regal, Bad mit Dusche und WC, Waschmaschine, WLAN.
Vorzimmer mit Fliesenboden, Zimmer mit Parkettboden, Fernwärmezentralheizung.
Gemütlich eingerichtet, perfekt zum Wohlfühlen.
Die Straßenbahnlinien 6 und 11 sind nur 120m entfernt und die U-Bahnlinie U1 erreicht man in 5 Minuten zu Fuß.
Auch die Favoritenstraße mit zahlreichen Einkaufsmöglichkeiten ist in 5 Minuten zu Fuß erreichbar.
Es ist nicht möglich hier den Hauptwohnsitz anzumelden. Die Kurzzeitwohnungen können von Berufspendlern (ohne Hauptwohnsitz in Wien) oder von Personen aus dem Ausland angemietet werden. Bei Einzug ist eine einmalige Endreinigungsgebühr von 150€ zu entrichten.
Information and data
This housing rental, which is furnished, is located on Gellertgasse in Vienna Favoriten. Vienna Favoriten has the zip code 1100 and is located in Vienna. The size of the rental is in total 24 m2. The housing is being rented out as an ordinary rental. The rental is available from 28.9.2026. The rent is Ca. 800 EUR per month. You must pay a deposit of Ca. 2,450 Euro.
Market insight: This home was identified through our real-time monitoring of the housing market. We collect housing rentals from across the country in your dashboard – including opportunities that are not always visible on traditional portals. Act immediately on fresh data before other home seekers.