Photo provided by Google Street View and may be inaccurate:

Apartment for rent, Stad Antwerp, Antwerp, Appelmansstraat

Appelmansstraat, Stad Antwerp
  • Apartment for rent
  • 37 m2
  • 1,230 EUR per month
Apartment for rent, Stad Antwerp, Antwerp, Appelmansstraat
Appelmansstraat, Stad Antwerp
  • Apartment for rent
  • 37 m2
  • 1,230 EUR per month
GET MORE INFO
Your are linked to another portal where payment or signing up may be needed

Apartment for rent, Stad Antwerp, Antwerp, Appelmansstraat

Facts

  • 9360618
  • Apartment
  • 37 m2
  • 1
  • 5.2.2026
  • 1,230 EUR
  • 1,230 EUR
  • Yes
GET MORE INFO
Your are linked to another portal where payment or signing up may be needed

Apartment for rent in Stad Antwerp, Antwerp

Important information: This housing is advertised by a private landlord. It is therefore important that you are extra careful. Read more.

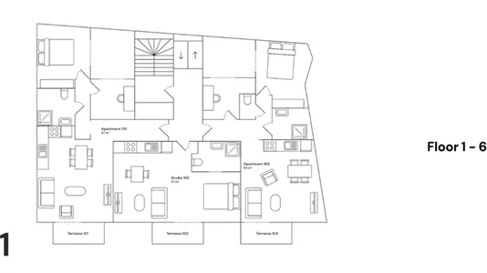
Discover your ideal urban retreat in the heart of Belgium with this high-end furnished private studio located near Antwerp Central Station. Perfectly designed for comfortable city living, this 37 sqm studio offers a bright, welcoming space with modern amenities and thoughtful touches to make your stay enjoyable from day one.

The studio features a spacious living area with a comfortable double bed (160x200), neat decor, and ample natural light. A seamless integration of living and dining spaces includes a built-in kitchen equipped with ceramic cooking plates, an oven, hood, dishwasher, microwave, kettle, coffee machine, and full sets of dishes and utensils—everything you need for a hassle-free lifestyle. A private terrace extends your living space outdoors, ideal for relaxing or enjoying the fresh air.

The generously sized bathroom is equipped with a shower, washbasin, toilet, and washing machine, ensuring all essentials are within easy reach. Additional conveniences include a refrigerator, wardrobe, desk, TV, high-speed internet, radiator, and premium bedding—offering a perfect balance of practicality and comfort.

Situated just a short walk from supermarkets, restaurants, bars, a gym, and a cinema, your daily needs and entertainment options are right at your doorstep. Excellent transportation links are nearby, with Antwerp Opera Metro stations and tram lines connecting you effortlessly across the city.

Residents also have access to an array of amenities including a social lounge, gym, bicycle parking, and building support services. Whether you're visiting for study, work, or leisure, this studio offers a stylish, well-equipped base in a vibrant neighborhood—combining convenience, comfort, and modern living in one exceptional package.

Information and data

This housing rental, which is furnished, is located on Appelmansstraat in Stad Antwerp. Stad Antwerp has the zip code 2018 and is located in Antwerp. The size of the rental is in total 37 m2 with 1 separate rooms. The housing is being rented out as an ordinary rental. The rental is available from 5.2.2026. The rent is 1,230 EUR per month. You must pay a deposit of 1,230 Euro.


This is a search result. Continue to the external website by clicking the button to receive more info about the housing.