Photo provided by Google Street View and may be inaccurate:
Apartment for rent, Delft, South Holland, Asvest
Asvest, Delft- Apartment for rent
- 30 m2
- 1,735 EUR per month
Asvest, Delft
- Apartment for rent
- 30 m2
- 1,735 EUR per month
GET MORE INFO
Your are linked to another portal where payment or signing up may be needed
Apartment for rent, Delft, South Holland, Asvest
Facts
- 11858408
- Apartment
- 30 m2
- 1.11.2026
- 1,735 EUR
- 2,160 EUR
- Yes
GET MORE INFO
Your are linked to another portal where payment or signing up may be needed
Apartment for rent in Delft, South Holland
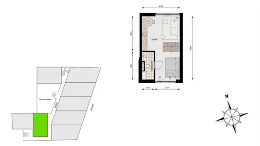
Studio 22D
This courtyard studio, located on the second floor of the building, is 30 square meters in size and has a view over the inside garden of the building. The studio is fully equipped and furnished with a bed, a sofa, a closet, a dining table, and chairs. The studio also comes with towels and bed linen.
The building is very sustainable and environmentally friendly. Your studio can cool and heat itself with the Airconditioning installed. The energy used comes from the solar panels on the rooftop.
The design of this property has a very modern approach, giving it a very chic appearance. The Scandinavian interior ensures plenty of brightness and light in the studio. The space is cleverly divided by using a desk bed. This piece of furniture functions when unfolded as a bed (160x200) and folded as a desk to save space.
The courtyard
The courtyard studios are the smallest studios we offer in terms of square meters, but that certainly does not make them less pleasant to stay in. The smart layout ensures that they still feel spacious and because of the view of the courtyard, the studio feels light, spacious and relaxing.
Included in the rent:
• Water
• Electricity
• Internet (private connection)
• Furniture
• Bed linen and towels
• Cleaning 2x per month
Shared facilities:
• Washing machine (reserve and rent)
• Shared communal garden
• Shared common area on the ground floor
Location:
• Perfect location in the city center
• Shopping center with shops, restaurants, supermarkets plus a public library, cinema, and theater around the corner
Kitchen:
• Fully equipped
• Dishwasher
• Refrigerator
• Cutlery and pans
• Combi oven
Additional facilities:
• Quick access to public transport
• Safe environment with 24/7 CCTV
• Private storage safe on the ground floor
Other information:
• Deposit: 1-month rent
• Notice period: 3 calendar months
• Minimum rental period: 3 months
• Maximum rental period: 12 months
• Registration pois ssible, 2 persons
Please note:
• Couples are welcome, but sharing with a friend is not allowed.
• Due to changes in the local tax law, we can only guarantee the current rental price until the 31st of December 2025. In 2026, there will be an increased tax rate of 21% instead of 9%.
• This tax for temporary rentals in the Netherlands is reflected in the payment overview as “Other (monthly)”.
Take this unique opportunity to live in a modern, fully equipped studio in the heart of Delft!
This courtyard studio, located on the second floor of the building, is 30 square meters in size and has a view over the inside garden of the building. The studio is fully equipped and furnished with a bed, a sofa, a closet, a dining table, and chairs. The studio also comes with towels and bed linen.
The building is very sustainable and environmentally friendly. Your studio can cool and heat itself with the Airconditioning installed. The energy used comes from the solar panels on the rooftop.
The design of this property has a very modern approach, giving it a very chic appearance. The Scandinavian interior ensures plenty of brightness and light in the studio. The space is cleverly divided by using a desk bed. This piece of furniture functions when unfolded as a bed (160x200) and folded as a desk to save space.
The courtyard
The courtyard studios are the smallest studios we offer in terms of square meters, but that certainly does not make them less pleasant to stay in. The smart layout ensures that they still feel spacious and because of the view of the courtyard, the studio feels light, spacious and relaxing.
Included in the rent:
• Water
• Electricity
• Internet (private connection)
• Furniture
• Bed linen and towels
• Cleaning 2x per month
Shared facilities:
• Washing machine (reserve and rent)
• Shared communal garden
• Shared common area on the ground floor
Location:
• Perfect location in the city center
• Shopping center with shops, restaurants, supermarkets plus a public library, cinema, and theater around the corner
Kitchen:
• Fully equipped
• Dishwasher
• Refrigerator
• Cutlery and pans
• Combi oven
Additional facilities:
• Quick access to public transport
• Safe environment with 24/7 CCTV
• Private storage safe on the ground floor
Other information:
• Deposit: 1-month rent
• Notice period: 3 calendar months
• Minimum rental period: 3 months
• Maximum rental period: 12 months
• Registration pois ssible, 2 persons
Please note:
• Couples are welcome, but sharing with a friend is not allowed.
• Due to changes in the local tax law, we can only guarantee the current rental price until the 31st of December 2025. In 2026, there will be an increased tax rate of 21% instead of 9%.
• This tax for temporary rentals in the Netherlands is reflected in the payment overview as “Other (monthly)”.
Take this unique opportunity to live in a modern, fully equipped studio in the heart of Delft!
Information and data
This housing rental, which is furnished, is located on Asvest in Delft. Delft has the zip code and is located in South Holland. The size of the rental is in total 30 m2. The housing is being rented out as an ordinary rental. The rental is available from 1.11.2026. The rent is 1,735 EUR per month. You must pay a deposit of 2,160 Euro.
This is a search result. Continue to the external website by clicking the button to receive more info about the housing.