Photo provided by Google Street View and may be inaccurate:
Apartment for rent, Delft, South Holland,
, Delft- Apartment for rent
- Ca. 45 m2
- Ca. 2,150 EUR per month
, Delft
- Apartment for rent
- Ca. 45 m2
- Ca. 2,150 EUR per month
GET MORE INFO
Your are linked to another portal where payment or signing up may be needed
Apartment for rent, Delft, South Holland,
Facts
- 11858406
- Apartment
- Ca. 45 m2
- 1
- 1.7.2027
- Ca. 2,150 EUR
- Ca. 2,550 EUR
- Yes
GET MORE INFO
Your are linked to another portal where payment or signing up may be needed
Apartment for rent in Delft, South Holland
Studio 22C
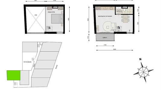
This loft apartment, located on the second floor of the building, is 44 square meters in size and has a balcony on the first floor of the loft located on the southwest. The loft is fully equipped and furnished with two double beds, a sofa, a closet, a dining table, and chairs. The studio also comes with towels and bed linen.
The building is very sustainable and environmentally friendly. Your studio can cool and heat itself with the Airconditioning installed. The energy used comes from the solar panels on the rooftop.
The design of this property has a very modern approach, giving it a very chic appearance. The Scandinavian interior ensures plenty of brightness and light in the studio. The space is cleverly divided by using a desk bed. This piece of furniture functions when unfolded as a bed (160x200) and folded as a desk to save space. The other bed on the upper floor of the apartment is a regular double bed.
The loft
The loft apartments are the real eye-catchers. They radiate luxury and comfort and could come straight from a home magazine. The homes feel spacious because the ceilings are extremely high and the windows extend all the way to the ceiling. On the ground floor of the loft apartments, you will find the kitchen, bathroom, and living room area. There is also a balcony. Those who take the stairs upstairs can sit behind a desk to work, with a view through the large windows. The sleeping area is also on the top floor.
Included in the rent:
• Water
• Electricity
• Internet (private connection)
• Furniture
• Bed linen and towels
• Cleaning 2x per month
Shared facilities:
• Washing machine (reserve and rent)
• Shared communal garden
• Shared common area on the ground floor
Location:
• Perfect location in the city center
• Shopping center with shops, restaurants, supermarkets plus a public library, cinema, and theater around the corner
Kitchen:
• Fully equipped
• Dishwasher
• Refrigerator
• Cutlery and pans
• Combi oven
Additional facilities:
• Quick access to public transport
• Safe environment with 24/7 CCTV
• Private storage safe on the ground floor
Other information:
• Deposit: 1-month rent
• Notice period: 3 calendar months
• Minimum rental period: 3 months
• Maximum rental period: 12 months
• Registration is possible, 2 persons
Please note:
• Couples are welcome, but sharing with a friend is not allowed.
• Due to changes in the local tax law, we can only guarantee the current rental price until the 31st of December 2025. In 2026, there will be an increased tax rate of 21% instead of 9%.
• This tax for temporary rentals in the Netherlands is reflected in the payment overview as “Other (monthly)”.
Take this unique opportunity to live in a modern, fully equipped studio in the heart of Delft!
This loft apartment, located on the second floor of the building, is 44 square meters in size and has a balcony on the first floor of the loft located on the southwest. The loft is fully equipped and furnished with two double beds, a sofa, a closet, a dining table, and chairs. The studio also comes with towels and bed linen.
The building is very sustainable and environmentally friendly. Your studio can cool and heat itself with the Airconditioning installed. The energy used comes from the solar panels on the rooftop.
The design of this property has a very modern approach, giving it a very chic appearance. The Scandinavian interior ensures plenty of brightness and light in the studio. The space is cleverly divided by using a desk bed. This piece of furniture functions when unfolded as a bed (160x200) and folded as a desk to save space. The other bed on the upper floor of the apartment is a regular double bed.
The loft
The loft apartments are the real eye-catchers. They radiate luxury and comfort and could come straight from a home magazine. The homes feel spacious because the ceilings are extremely high and the windows extend all the way to the ceiling. On the ground floor of the loft apartments, you will find the kitchen, bathroom, and living room area. There is also a balcony. Those who take the stairs upstairs can sit behind a desk to work, with a view through the large windows. The sleeping area is also on the top floor.
Included in the rent:
• Water
• Electricity
• Internet (private connection)
• Furniture
• Bed linen and towels
• Cleaning 2x per month
Shared facilities:
• Washing machine (reserve and rent)
• Shared communal garden
• Shared common area on the ground floor
Location:
• Perfect location in the city center
• Shopping center with shops, restaurants, supermarkets plus a public library, cinema, and theater around the corner
Kitchen:
• Fully equipped
• Dishwasher
• Refrigerator
• Cutlery and pans
• Combi oven
Additional facilities:
• Quick access to public transport
• Safe environment with 24/7 CCTV
• Private storage safe on the ground floor
Other information:
• Deposit: 1-month rent
• Notice period: 3 calendar months
• Minimum rental period: 3 months
• Maximum rental period: 12 months
• Registration is possible, 2 persons
Please note:
• Couples are welcome, but sharing with a friend is not allowed.
• Due to changes in the local tax law, we can only guarantee the current rental price until the 31st of December 2025. In 2026, there will be an increased tax rate of 21% instead of 9%.
• This tax for temporary rentals in the Netherlands is reflected in the payment overview as “Other (monthly)”.
Take this unique opportunity to live in a modern, fully equipped studio in the heart of Delft!
Information and data
This housing rental, which is furnished, is located on Asvest in Delft. Delft has the zip code and is located in South Holland. The size of the rental is in total 44 m2 with 1 separate rooms. The housing is being rented out as an ordinary rental. The rental is available from 1.7.2027. The rent is Ca. 2,150 EUR per month. You must pay a deposit of Ca. 2,550 Euro.
Market insight: This home was identified through our real-time monitoring of the housing market. We collect housing rentals from across the country in your dashboard – including opportunities that are not always visible on traditional portals. Act immediately on fresh data before other home seekers.